
ОБЩАЯ ПЛОЩАДЬ — 298,87 м2
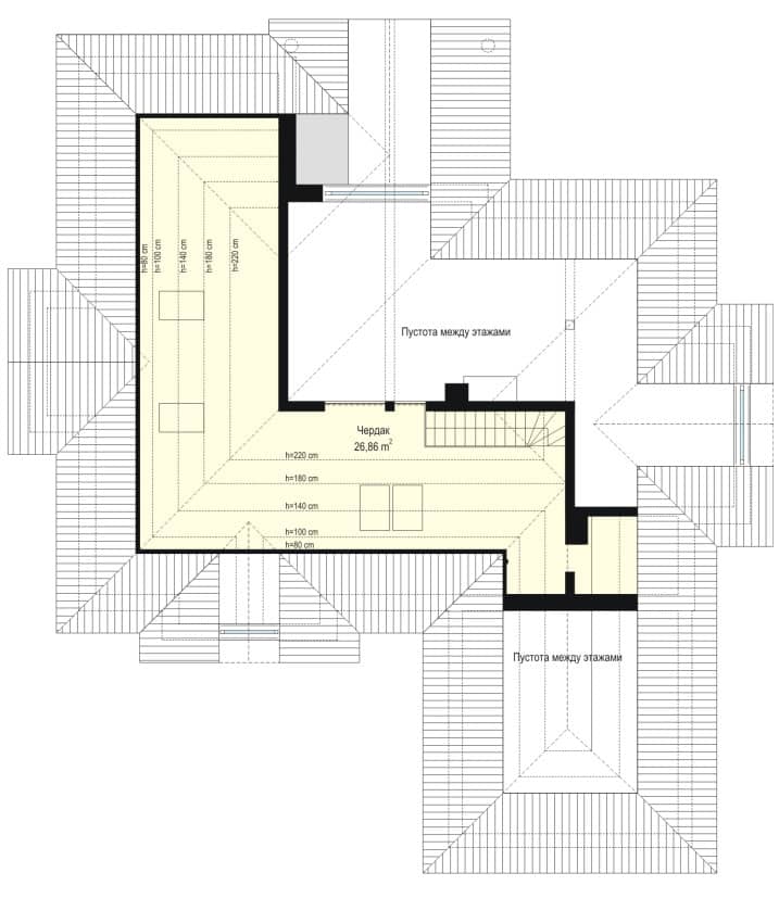
Проект дома Раскидистый - это презентабельная вилла для семьи из 4 - 5 человек. Одноэтажное сторение из нескольких частей, покрыто многоскатной крышей. Раскидистый совмещает в себе, классический стиль и современные элементы, такие как обширные остекления, интересные детали и новейшие материалы. Фасады украшают: эркеры, козырьки, крытая садовая терраса и отделка фасадов клинкерной плиткой. Раскидистый, впишется в любой окружающий вид. Учитывая объемный план, дом недешевый в постройке, однако благодаря хорошим изоляциям и утеплению, траты на эксплуатацию будут низкими. Дом четко поделен на три части: дневную, ночную и техническую. В дневной части находятся: гостиная с камином и высоким потолком достигающим крыши, столовая, кухня, холл. В тех.части: котельная и и удобный двухместный гараж. В ночной части: четыре спальни и ванная. Также, под спортивную или комнату отдыха можно адаптировать находящийся над этажом чердак.
Проект дома Раскидистый доступен в зеркальной версии с гаражом слева.
Технические данные
кубатура - 1228 куб.м
площадь застройки - 270,06 кв.м. с крыльцами 292,97
общая площадь - 298,87 кв.м
площадь нетто - 182,44 + гараж 35,02 + чердак 26,86 кв.м
полезная площадь - 176,91 + чердак 26,86
площадь крыши - 383,78 кв.м
угол наклона крыши - 30 градусов
высота строения - 6,57 м (6,78 м с подведением фундамента)
ширина - 19,36 м
длина - 21,86 м
минимальная ширина участка - 27,36 м
минимальная длина участка - 29,21 м
высота помещений - 2,7 м






