Видео
отзывы
Кредит, ипотека Подбор зем. участка Обмен на квартиру Экскурсия на объект
8(843) 225-88-22
+7 927 248 80 60
Оставить заявку
г. Казань
ул. Журналистов, д. 2, офис 4
Строим Ваши Мечты
Экологически чистые дома
для самого ценного времени

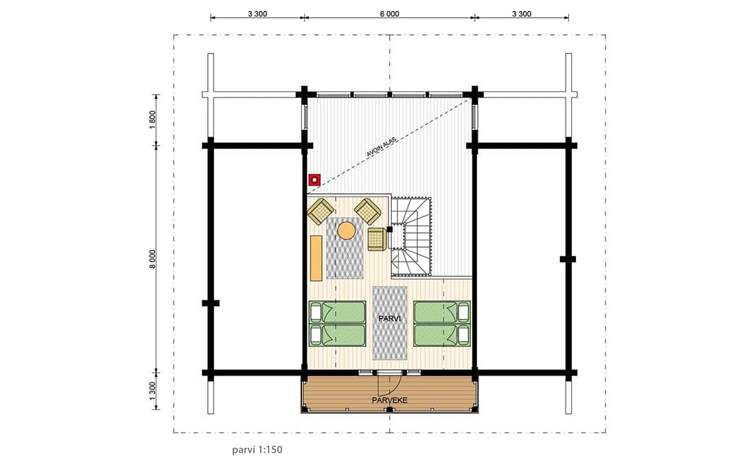
К-204 (163м2)

СтоимостьКомплектация
Клееный брус
200*185 мм
Клееный брус
160*185 мм
Профилированный брус
190*165 мм
Каркасная технология
250 мм
Базовая
2330900 руб.
2151600 руб.
1972300 руб.
1793000 руб.
Стандарт
4123900 руб.
3814200 руб.
3390400 руб.
3015500 руб.
Полная
4694400 руб.
4384700 руб.
3960900 руб.
3586000 руб.
* Все расчеты на дома на сайте являются предварительными и не являются публичной офертой