Видео
отзывы
Кредит, ипотека Подбор зем. участка Обмен на квартиру Экскурсия на объект
8(843) 225-88-22
+7 927 248 80 60
Оставить заявку
г. Казань
ул. Журналистов, д. 2, офис 4
Строим Ваши Мечты
Экологически чистые дома
для самого ценного времени

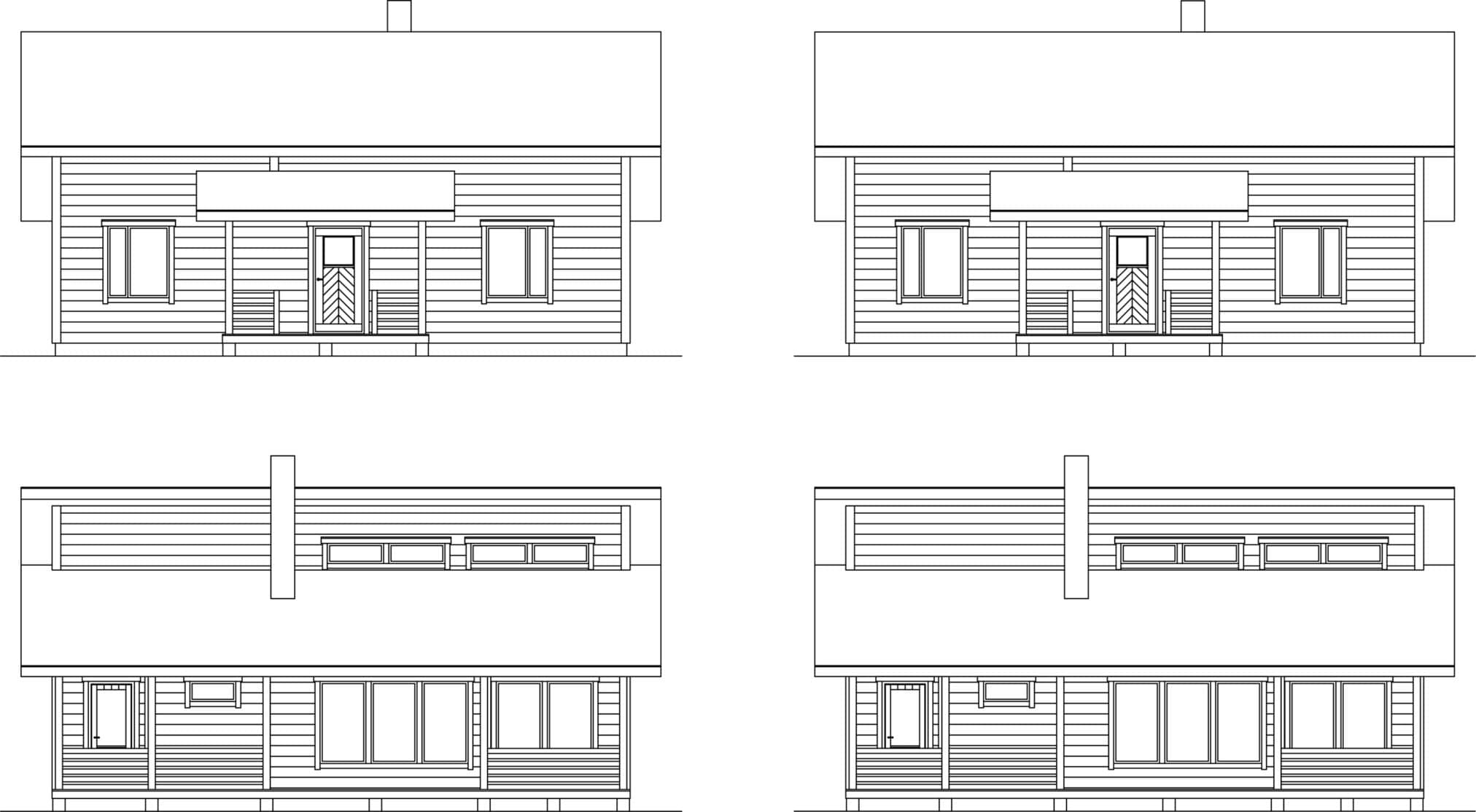
А-112(142м2)

СтоимостьКомплектация
Клееный брус
200*185 мм
Клееный брус
160*185 мм
Профилированный брус
190*165 мм
Каркасная технология
250 мм
Базовая
2030600 руб.
1874400 руб.
1718200 руб.
1562000 руб.
Стандарт
3592600 руб.
3322800 руб.
2953600 руб.
2627000 руб.
Полная
4089600 руб.
3819800 руб.
3450600 руб.
3124000 руб.
* Все расчеты на дома на сайте являются предварительными и не являются публичной офертой