Видео
отзывы
Кредит, ипотека Подбор зем. участка Обмен на квартиру Экскурсия на объект
8(843) 225-88-22
+7 927 248 80 60
Оставить заявку
г. Казань
ул. Журналистов, д. 2, офис 4
Строим Ваши Мечты
Экологически чистые дома
для самого ценного времени

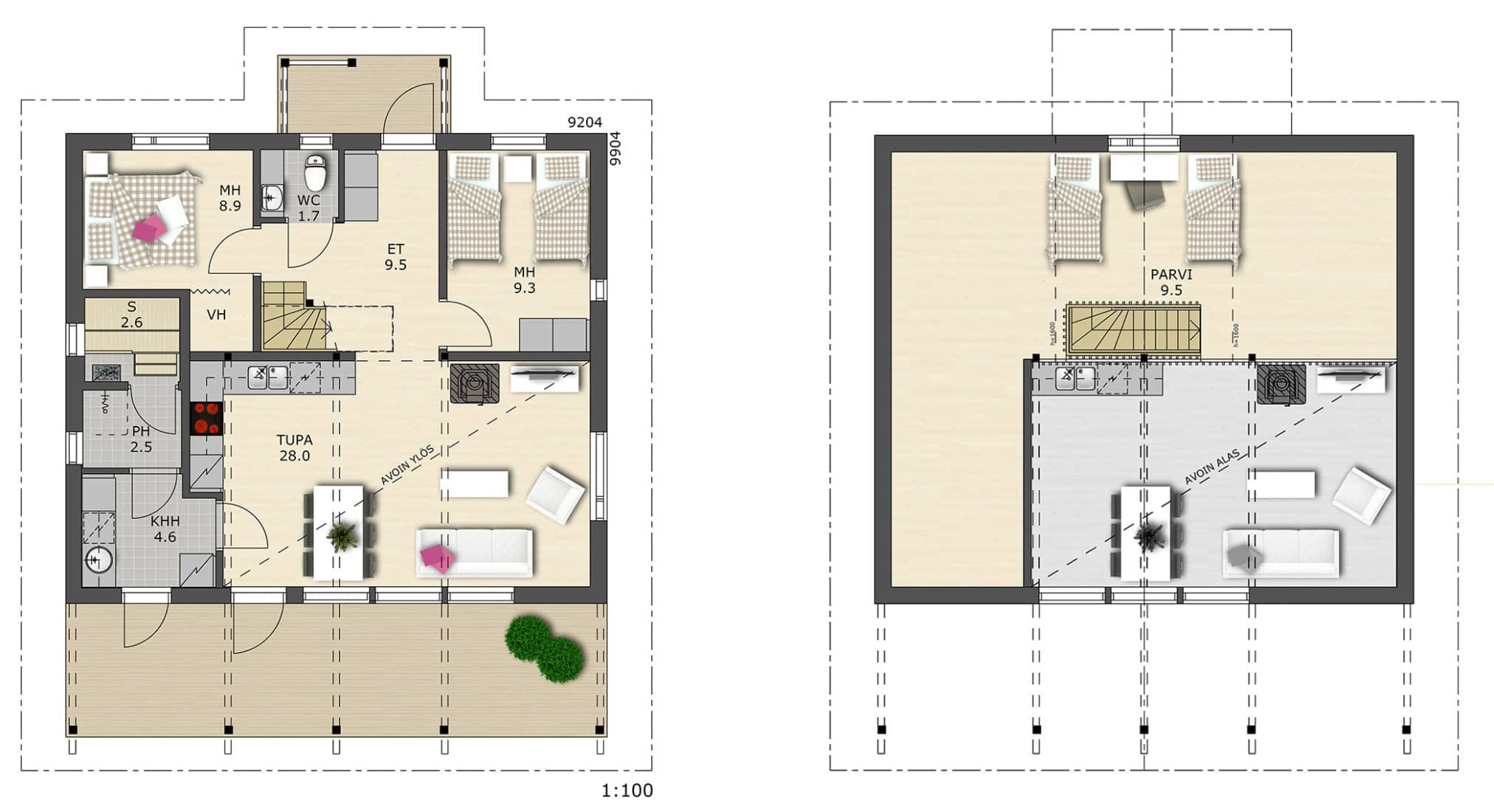
Н-80 (190м2)

СтоимостьКомплектация
Клееный брус
200*185 мм
Клееный брус
160*185 мм
Профилированный брус
190*165 мм
Каркасная технология
250 мм
Базовая
2717000 руб.
2508000 руб.
2299000 руб.
2090000 руб.
Стандарт
4807000 руб.
4446000 руб.
3952000 руб.
3515000 руб.
Полная
5472000 руб.
5111000 руб.
4617000 руб.
4180000 руб.
* Все расчеты на дома на сайте являются предварительными и не являются публичной офертой