Экологически чистые дома для самого ценного времени
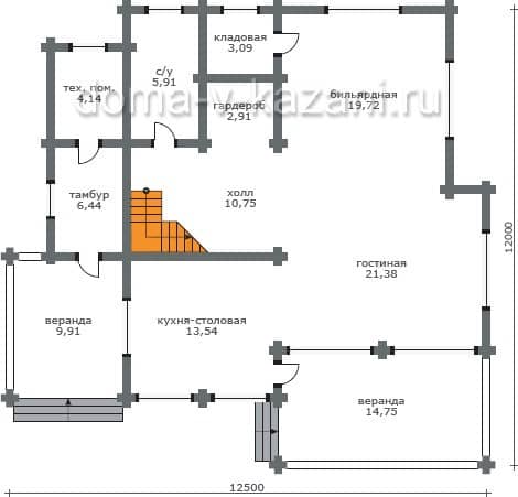
Проект :: d-80
Комплектация база
Подготовка проектно-сметной документации.
Устройство фундамента из винтовых сталежелезобетонных свай.
Сборка стенового комплекта из клееного бруса сечением 200*185 мм/клееного бруса сечением 160*185 мм/профилированного бруса сечением 190*165 мм/каркасной технологии с утеплением 200 мм с чистовой обшивкой уличных стен.
Межкомнатные перегородки из бруса 120*185 мм/по каркасной технологии.
Устройство межэтажных перекрытий из деревянных балок 100*200 мм с шагом 600 мм.
Устройство черновой кровли.
Обработка антисептиком стенового комплекта.
Комплектация стандарт
Подготовка проектно-сметной документации.
Устройство фундамента из винтовых сталежелезобетонных свай.
Сборка стенового комплекта из клееного бруса сечением 200*185 мм/клееного бруса сечением 160*185 мм/профилированного бруса сечением 190*165 мм/каркасной технологии с утеплением 200 мм с чистовой обшивкой уличных стен.
Межкомнатные перегородки из бруса 120*185 мм/по каркасной технологии.
Устройство межэтажных перекрытий из деревянных балок 100*200 мм с шагом 600 мм.
Устройство крыши из металлочерепицы с утеплением 200 мм.
Окна по ГОСТУ СПД Рехау 58 мм.
Утепленная металлическая входная дверь.
Полы с утеплением 200 мм по деревянным балкам.
Наружняя отделка стен (покраска).
Обработка антисептиком стенового комплекта.
Комплектация полная
Подготовка проектно-сметной документации.
Устройство фундамента из винтовых сталежелезобетонных свай.
Сборка стенового комплекта из клееного бруса сечением 200*185 мм/клееного бруса сечением 160*185 мм/профилированного бруса сечением 190*165 мм/каркасной технологии с утеплением 200 мм с чистовой обшивкой уличных стен.
Межкомнатные перегородки из бруса 120*185 мм/по каркасной технологии.
Устройство межэтажных перекрытий из деревянных балок 100*200 мм с шагом 600 мм.
Устройство крыши из металлочерепицы с утеплением 200 мм. Подшив карнизов и устройство водостоков.
Окна по ГОСТУ СПД Рехау 70 мм.
Утепленная металлическая входная дверь.
Инженерные системы:
- электрофикация (скрытая проводка)
- устройство системы канализации с выгребной ямой
- система отопления под ключ
- система вентиляции под ключ
- врезка и подводка воды (до 10 метров от дома)
Полы с утеплением 200 мм по деревянным балкам. Настил фанеры 15 мм с подготовкой под ламинат.
Наружняя отделка стен (покраска).
Обработка антисептиком стенового комплекта и всех деревянных деталей.