Компактный по площади жилой дом имеет достаточный набор помещений, обеспечивающих комфортное проживание семьи из четырех человек. Его внешний облик олицетворяет надежность, основательность и функциональность. На первом этаже расположены вместительный холл с лестницей, просторная гостиная-каминный зал, кухня, рабочий кабинет. Санузел, хозяйственная комната и техническое помещение составляют отдельный блок. На втором, мансардном, этаже расположены три спальни (две имеют выход на балкон), большой холл, просторная ванная и гардеробная.
Дом выполнен из клееного бруса сечением 182 х 195 мм, не требующего внутренней отделки.
Общая площадь — 230,0 м2
Площадь 1 этажа — 130,0 м2
Кабинет — 14,0 м2
Гостиная-каминный зал — 28,5 м2
Кухня — 13,0 м2
Хоз. комната — 6,9 м2
Холл с лестницей — 13,4 м2
Санузел — 5,8 м2
Техн. помещение — 7,4 м2
Терраса — 41,0 м2
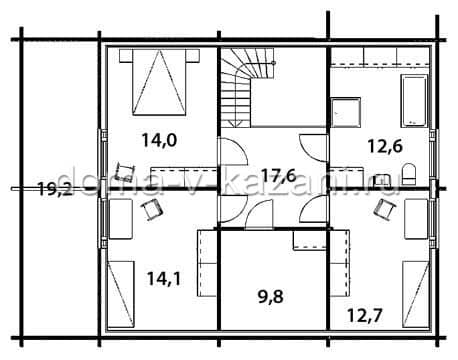
Площадь 2 этажа — 100,0 м2
Спальня — 14,1; 14,0; 12,7 м2
Холл с лестницей — 17,6 м2
Гардеробная — 9,8 м2
Санузел — 12,6 м2
Балкон — 19,2 м2
