Внешне этот жилой дом соответствует традиционному финскому стилю: прямая двускатная крыша, под выносом которой расположена открытая терраса, а под ней — балкон.
Площадь первого этажа функционально поделена на две части: в первой части располагаются двухсветная гостиная, кухня-столовая, во второй — спальня с гардеробной, сауна и техническое помещение, имеющее отдельный вход. Лестница ведет на второй, мансардный, этаж: здесь расположены три спальни, санузел, галерея, открывающая вид на двухсветную гостиную. Здесь же имеется небольшой уголок с освещением через наклонное окно в крыше, где можно установить компьютер, оборудовать рабочее место. Лаконичность и функциональность планировки обеспечивают комфортные условия проживания.
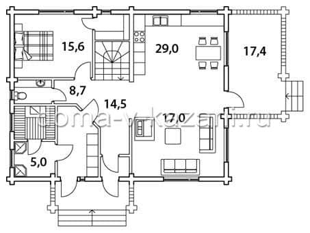
Общая площадь — 220,1 м2
Площадь 1 этажа — 119,3 м2
Холл — 14,5 м2
Гостиная — 17,0 м2
Кухня-столовая — 29,0 м2
Санузел — 3,5 м2
Хоз. комната — 8,7 м2
Спальня — 15,6 м2
Сауна — 5,0 м2
Душевая — 5,0 м2
Гардеробная — 3,6 м2
Терраса — 17,4 м2
Площадь 2 этажа — 100,8 м2
Спальня — 20,4; 20,4; 15,2 м2
Санузел — 5,0 м2
Балкон — 15,7 м2
Гардеробная — 3,6; 3,1 м2
Лоджия — 17,4 м2
