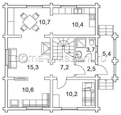
ОБЩАЯ ПЛОЩАДЬ — 149,6 м2
ПЛОЩАДЬ 1 ЭТАЖА — 76,0 м2
Столовая — 10,7 м2
Кухня — 10,4 м2
Холл — 15,3 м2
Гостиная — 10,6 м2
Кабинет — 10,2 м2
Прихожая — 7,2 м2
Санузел — 3,7 м2
Крыльцо — 5,4 м2
ПЛОЩАДЬ МАНСАРДЫ — 73,6 м2
Лоджия — 6,0 м2
Кабинет — 10,2 м2
Холл — 4,6 м2
Санузел — 6,6 м2
Спальня — 19,4; 16,6; 10,2 м2
