ОБЩАЯ ПЛОЩАДЬ — 174,7 м2
ПЛОЩАДЬ ЦОКОЛЬНОГО этажа — 18,2 м2
Лестница — 9,4 м2
Кладовая — 8,8 м2
ПЛОЩАДЬ 1 ЭТАЖА — 96,8 м2
Прихожая — 10,1 м2
Санузел — 9,3 м2
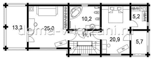
Холл — 11,1 м2
Кухня-столовая — 11,8 м2
Гостиная — 25,6 м2
Котельная — 4,6 м2
Крыльцо — 8,0 м2
Терраса — 16,3 м2
ПЛОЩАДЬ 2 ЭТАЖА — 91,4 м2
Холл — 11,1 м2
Санузел — 10,2 м2
Спальня — 25,0; 20,9 м2
Гардеробная — 5,2 м2
Балкон — 13,3; 5,7 м2
